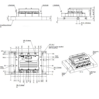
SKiiP513GD172-3DUW V3

Ціна: 6141.00 EUR
Напруга (V): 1700
Струм (A): ≤ 600
Конфігурація IGBT модуля: 3-фазний міст